By NORA GRACE-FLOOD | New Haven Independent
A Kimberly Square supermarket is looking to stock more shelves and serve more shoppers — by first paving more parking spaces and later tearing down a two-family home.
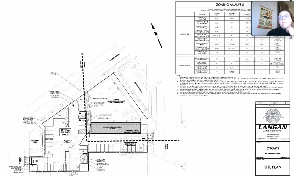
That preliminary plan to grow the square footage of C‑Town, a grocery store at 482 Greenwich Ave. in the Hill, came to light during Tuesday’s latest regular monthly meeting of the Board of Zoning Appeals (BZA). That meeting took place online via Zoom.
C‑Town Owner Kelvin Lopez arrived at that Zoom conference ready to request two special exceptions that would allow for greater on-site and street parking as the first steps in an attempt to build out his self-described “community market.”
Namely, Lopez is seeking special exceptions to allow for “transition parking and off-street parking spaces located within the front yard setback” at 61, 63 Kimberly Ave. and 482 Greenwich Ave., to quote directly from Tuesday’s BZA agenda. Read Lopez’s full zoning relief application here.
The ultimate concept, Lopez said Tuesday night, is to increase C‑Town’s total floor space by 3,300 square feet “to provide better service as far as items and better variety for the community.”
This early step in C‑Town’s expansion plan involves increasing the store’s number of parking spaces from 28 to 43. “Since the beginning we’ve had issues with the parking not being enough,” Lopez, who opened C‑Town in December 2004, said Tuesday.
Emilia Perez, an engineer working on the project, argued that expanding the parking lot was an issue of pedestrian safety and general traffic circulation. “If you’ve visited C‑Town you can tell it’s a tight parking lot,” she said.
This week, Lopez broached the idea of converting 61 and 63 Kimberly Ave. — which include a vacant lot immediately adjacent to C‑Town as well as a two-family house, both of which are under Lopez’s ownership — into surface parking.
Two special exceptions are required to enact that plan. Lopez needs permission for “transition parking,” which refers to utilizing space zoned as residential (61 Kimberly Ave.) for parking that’s related to commerce located in a business district (482 Greenwich Ave.). And he needs permission for “frontyard parking,” a comparably self-evident phenomenon that is allowed so long as the applicant looking to pave parking spots in front of a residence can show that doing so won’t introduce safety concerns or lower property values, among other criteria.
If approved, those special exceptions would mean the merging of 482 Greenwich Ave., 61 Kimberly Ave., and 63 Kimberly Ave. into one 37,297 square foot parking lot. It would also open the door to a second application on the part of Lopez to New Haven’s City Plan Commission — featuring a site plan review for the expanded parking lot and a proposal to knock down a two-family home owned by Lopez at 63 Kimberly Ave. to create space for that larger shop.
Hill resident Leslie Radcliffe, speaking up during the public hearing portion of the meeting, questioned whether that home is currently occupied by tenants.
Lopez said that two families are indeed living in the house. “We will give them some time for them to find a place and most likely that’s gonna take a couple of months,” he said. “After that, when everything is approved, is when we would demolish the house.”
As is the case with all parking-related zoning relief requests, the BZA referred Tuesday’s applications to the City Plan Commission for further review. The City Plan Commission will then issue its own recommendation on the matter before sending the applications back to the BZA for a final vote.
Discover more from InnerCity News
Subscribe to get the latest posts sent to your email.





